Volver a Proyectos AirBnb Pereira
Diseño Estructural Residencial — Pereira, Risaralda

AirBnb Pereira

Vivienda Turística con Columnas CFT

Diseño Estructural Diseño en Acero Diseño de Conexiones DC-CAD ETABS NSR-10

Puntos Clave

  • Columnas compuestas CFT: acero + concreto en un solo elemento
  • Conexiones CFT especializadas precalificadas según norma AISC
  • Diseño de pedestales
  • Losa laminada colaborante
  • Registro fotográfico de obra

Especificaciones Técnicas

Sistema Estructural
Sistema Mixto Acero–Concreto
Normativa
NSR-10, AISC 360, AISC 358, AISC 341
Software
ETABS, DC-CAD, Excel
Perfiles
CFT (Concrete Filled Tubes)
Cimentación
Pedestales + zapatas aisladas + zapatas combinadas

Contexto

Proyecto de vivienda turística en Pereira, zona cafetera con sismicidad intermedia. La estructura plantea retos particulares: voladizos para terrazas con cargas de uso social, sistema mixto con columnas CFT (Concrete Filled Tubes) que combina el confinamiento del concreto con la ductilidad del acero, y conexiones precalificadas que exigen un diseño más allá de las soluciones estándar para perfiles abiertos.

Ubicación

Pereira, Risaralda

Próximo al casco urbano con acceso rápido al Aeropuerto Matecaña, el Parque del Café y los principales atractivos del Eje Cafetero.

Programa arquitectónico

2 apartamentos por piso Áreas sociales y privadas diferenciadas Terrazas con vista al horizonte Zonas comunes en primer piso

Criterios de diseño

Orientación y vistas optimizadas Diseño estructural eficiente (NSR-10) Modulación flexible por unidad Alta rentabilidad en plataformas OTA

Rol

Ingeniero estructural apoyando el diseño, modelación, producción de planos de despieces y memorias de cálculo.

Proceso

  • Revisión de los requerimientos arquitectónicos para vivienda turística en la zona cafetera, definiendo luces y alturas libres compatibles con el programa de apartamentos
  • Diseño del sistema mixto acero–concreto con columnas CFT (Concrete Filled Tubes), modelando las secciones compuestas en ETABS con las propiedades combinadas del perfil de acero y el núcleo de concreto
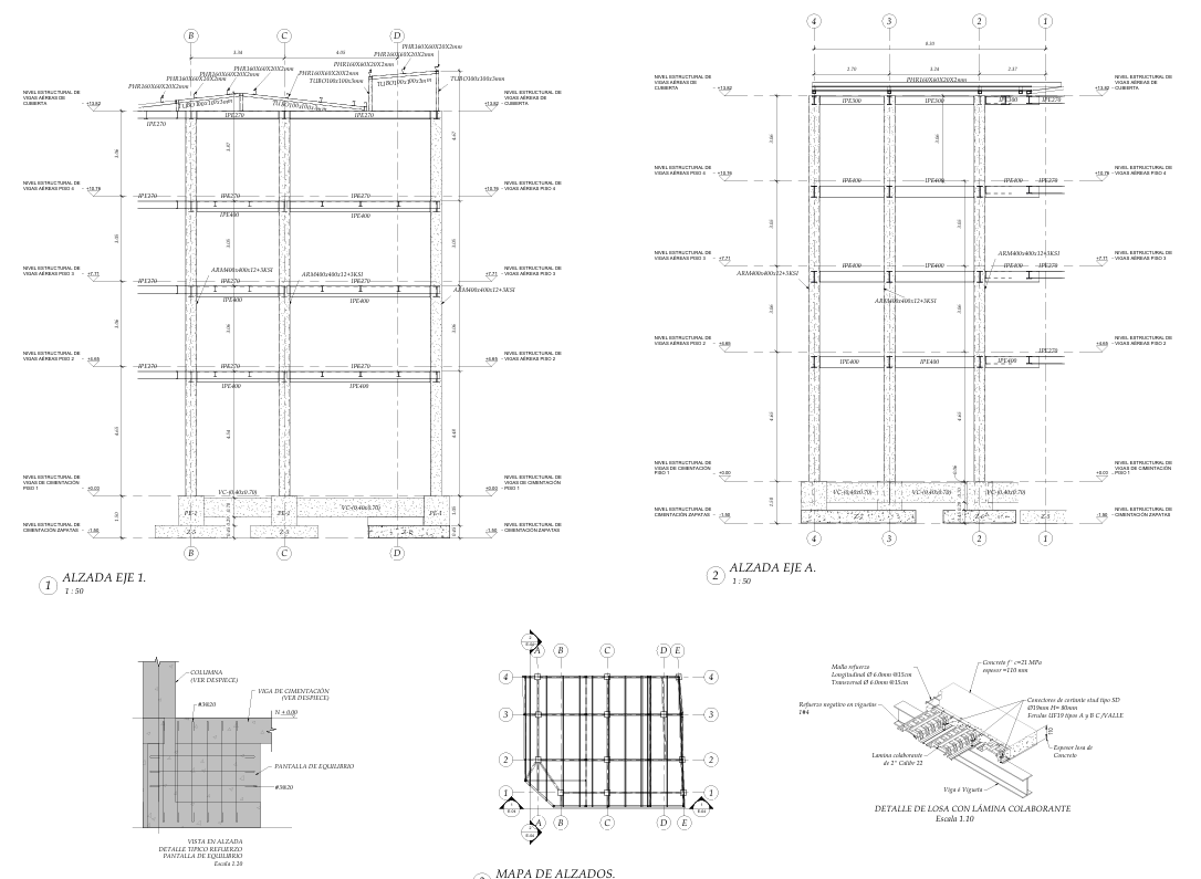
  • Diseño de conexiones CFT precalificadas siguiendo los lineamientos de AISC 358 y AISC 341, con configuraciones de 4 y 8 estribos según la demanda de cada nudo
  • Diseño de pedestales documentado en una memoria detallada de 5 páginas que cubre la transferencia de cargas desde la columna CFT hasta la cimentación
  • Producción de planos estructurales con detalles de la losa laminada colaborante, incluyendo conectores de corte, armadura de temperatura y refuerzo negativo en apoyos

Resultados

  • El sistema mixto con columnas CFT logró combinar la resistencia del concreto a compresión con la ductilidad del acero en un solo elemento, optimizando secciones frente a un sistema convencional
  • Las conexiones precalificadas de 4 y 8 estribos fueron verificadas según AISC 358/341, asegurando la formación de rótulas plásticas fuera de la zona de conexión
  • El diseño de pedestales, documentado en 5 páginas de memoria, resuelve la transición entre la columna CFT y la zapata de concreto con anclajes y rigidizadores dimensionados para la envolvente sísmica
  • La losa laminada colaborante proporcionó un sistema de entrepiso ligero con acción compuesta, reduciendo el peso propio y las demandas sobre la cimentación
  • Se obtuvo un registro fotográfico completo de la construcción que documenta la secuencia de montaje y la ejecución de las conexiones en obra

Lecciones

Las columnas CFT requieren un diseño de conexiones que va más allá de las conexiones de acero convencionales: el relleno de concreto modifica el mecanismo de transferencia de fuerzas en el nudo y demanda configuraciones de rigidizadores y estribos específicas que no aparecen en los catálogos estándar de perfiles abiertos.

Modelo 3D / Renders (2)

Render – AirBnb Pereira
Render – AirBnb Pereira
Render – AirBnb Pereira
Render – AirBnb Pereira

Análisis ETABS (12)

Captura ETABS – AirBnb Pereira
Captura ETABS – AirBnb Pereira
Captura ETABS – AirBnb Pereira
Captura ETABS – AirBnb Pereira
Captura ETABS – AirBnb Pereira
Captura ETABS – AirBnb Pereira
Captura ETABS – AirBnb Pereira
Captura ETABS – AirBnb Pereira
Captura ETABS – AirBnb Pereira
Captura ETABS – AirBnb Pereira
Captura ETABS – AirBnb Pereira
Captura ETABS – AirBnb Pereira
Captura ETABS – AirBnb Pereira
Captura ETABS – AirBnb Pereira
Captura ETABS – AirBnb Pereira
Captura ETABS – AirBnb Pereira
Captura ETABS – AirBnb Pereira
Captura ETABS – AirBnb Pereira
Captura ETABS – AirBnb Pereira
Captura ETABS – AirBnb Pereira
Captura ETABS – AirBnb Pereira
Captura ETABS – AirBnb Pereira
Captura ETABS – AirBnb Pereira
Captura ETABS – AirBnb Pereira

Planos Estructurales (7)

Plano estructural 1 – AirBnb Pereira
Plano estructural 1 – AirBnb Pereira
Plano estructural 2 – AirBnb Pereira
Plano estructural 2 – AirBnb Pereira
Plano estructural 3 – AirBnb Pereira
Plano estructural 3 – AirBnb Pereira
Plano estructural 4 – AirBnb Pereira
Plano estructural 4 – AirBnb Pereira
Plano estructural 5 – AirBnb Pereira
Plano estructural 5 – AirBnb Pereira
Plano estructural 6 – AirBnb Pereira
Plano estructural 6 – AirBnb Pereira
Plano estructural 7 – AirBnb Pereira
Plano estructural 7 – AirBnb Pereira