Volver a Proyectos Penthouse Anita
Reforzamiento Estructural Residencial — Cali, Valle del Cauca

Penthouse Anita

Reforzamiento estructural, diseño de Cubierta y ampliación

Diseño Estructural Análisis Sísmico ETABS NSR-10

Puntos Clave

  • Diseño de ampliación tipo penthouse
  • Tres láminas de planos estructurales E-01, E-02, E-03
  • Colaboración con equipo de arquitectura
  • Reforzamiento de mampostería confinada existente para soportar nuevo nivel

Especificaciones Técnicas

Sistema Estructural
Pórticos Resistentes a Momento en Concreto Reforzado
Normativa
NSR-10
Software
ETABS
Cimentación
Cimentación de ampliación

Reto de ingeniería

La estructura existente de mampostería confinada de 2 niveles no cumplía con los requerimientos de la norma actual NSR-10 por haber sido construida hace mucho tiempo. El proyecto requirió evaluar la capacidad existente y diseñar de cero todo el sistema estructural — desde la cimentación hasta la cubierta — implementando un sistema de pórticos resistentes a momento para garantizar la compatibilidad con los muros existentes y el cumplimiento de las exigencias sísmicas de Cali.

Ubicación

Cali, Valle del Cauca

Zona urbana consolidada, zona de amenaza sísmica alta (Cali — Av. II). Intervención en tejido residencial existente con restricciones de acceso y operación en sitio.

Rol

Diseño estructural integral: diagnóstico del sistema existente, modelado y verificación en ETABS bajo NSR-10, diseño del reforzamiento, de la cubierta y del nuevo nivel penthouse, y elaboración de planos estructurales para licencia de construcción.

Proceso

Diseño del tercer nivel como apartamento completo Sistema estructural nuevo integrado a lo existente Diseño de losa de entrepiso de transición Optimización de cargas muertas en nivel superior Cubierta ligera sobre nivel penthouse Diseño de elementos de soporte de cubierta Control de cargas de viento, lluvia e impacto Compatibilidad con el nuevo sistema portante

Resultados

  • Nivel habitable entregado como penthouse completo sobre estructura de mampostería confinada existente
  • 4 columnas reforzadas con encamisado de concreto para incrementar su capacidad a cortante y flexión
  • Deriva máxima verificada por debajo del 1% de h_pi en ambas direcciones, cumpliendo NSR-10
  • Cimentación nueva diseñada con zapatas de 1.2×1.2 m integrada al sistema existente
  • Cubierta ligera diseñada para cargas de viento, lluvia e impacto
  • Documentación completa lista para licencia de construcción

Lecciones

El diagnóstico es la etapa más crítica. En estructuras existentes de mampostería, la calidad de la información inicial sobre el sistema confinante y la cimentación define por completo la viabilidad del diseño. Un levantamiento incompleto puede invalidar semanas de cálculo.

Análisis ETABS (6)

Modelo ETABS – Penthouse Anita (01)
Modelo ETABS – Penthouse Anita (01)
Modelo ETABS – Penthouse Anita (02)
Modelo ETABS – Penthouse Anita (02)
Modelo ETABS – Penthouse Anita (03)
Modelo ETABS – Penthouse Anita (03)
Modelo ETABS – Penthouse Anita (04)
Modelo ETABS – Penthouse Anita (04)
Modelo ETABS – Penthouse Anita (05)
Modelo ETABS – Penthouse Anita (05)
Modelo ETABS – Penthouse Anita (06)
Modelo ETABS – Penthouse Anita (06)

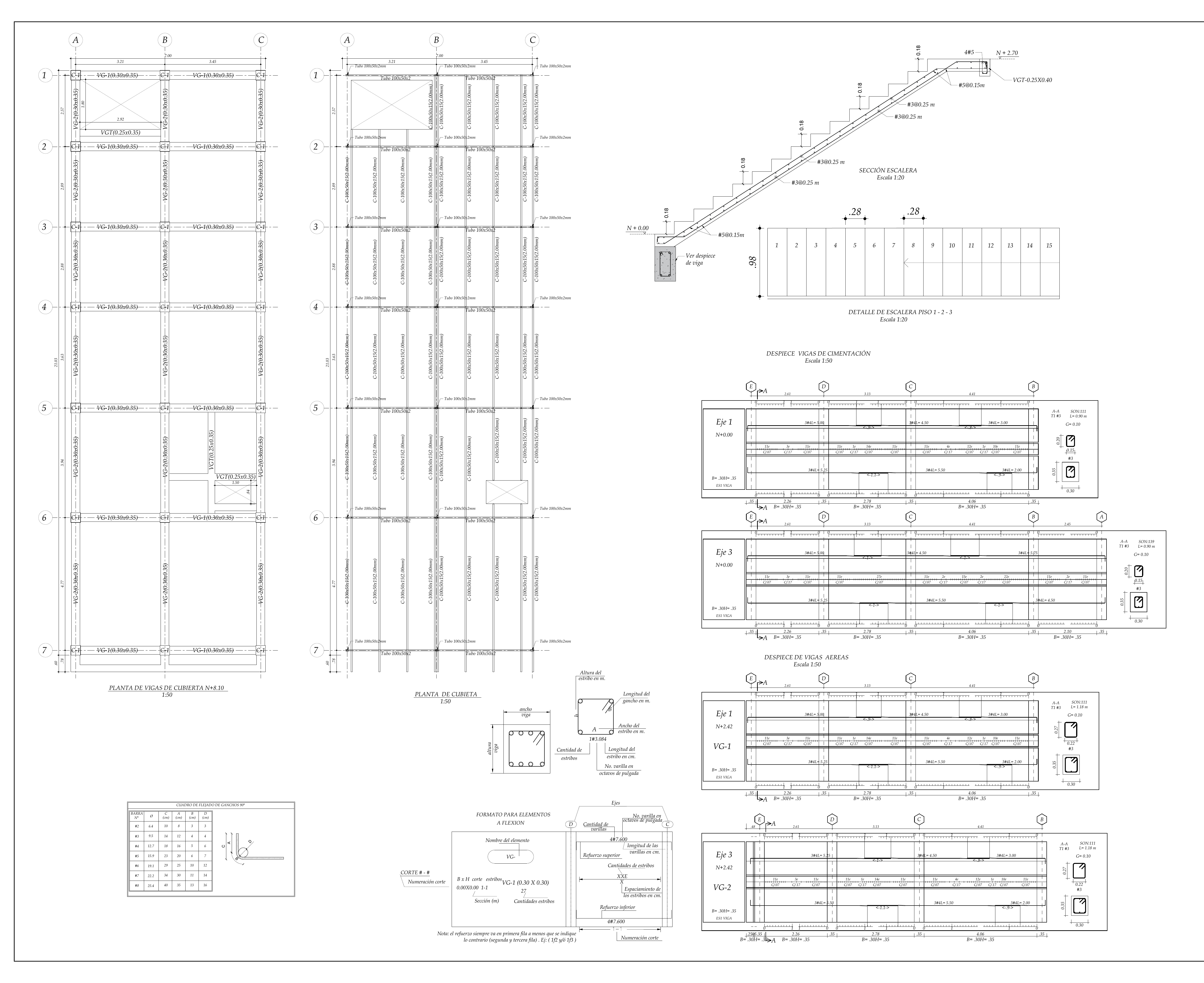
Planos Estructurales (3)

Plano estructural plano E-01 – Penthouse Anita
Plano estructural plano E-01 – Penthouse Anita
Plano estructural plano E-02 – Penthouse Anita
Plano estructural plano E-02 – Penthouse Anita
Plano estructural plano E-03 – Penthouse Anita
Plano estructural plano E-03 – Penthouse Anita