Volver a Proyectos Casa La Buitrera
Diseño Estructural Residencial — Corregimiento La Buitrera, Cali

Casa La Buitrera

Edificación metalica de un nivel residencial

Diseño Estructural Diseño en Acero DC-CAD ETABS NSR-10

Puntos Clave

  • Colaboración con AP Arquitectos para vivienda campestre
  • Columnas tubulares 150×150×6 mm para planta libre
  • Estudio de suelos propio para diseño de cimentación
  • Conexiones diseñadas en DC-CAD

Especificaciones Técnicas

Niveles
1
Altura
5.09 m
Sistema Estructural
Pórticos Resistentes a Momento en Acero
Normativa
NSR-10, AISC 360
Software
ETABS, DC-CAD, RAM Connections
Perfiles
Tubo 150×150×6 mm
Cimentación
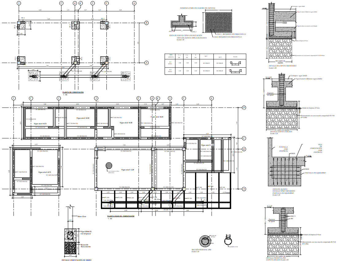
Pedestales + vigas de cimentación + zapatas aisladas excentricas

Contexto

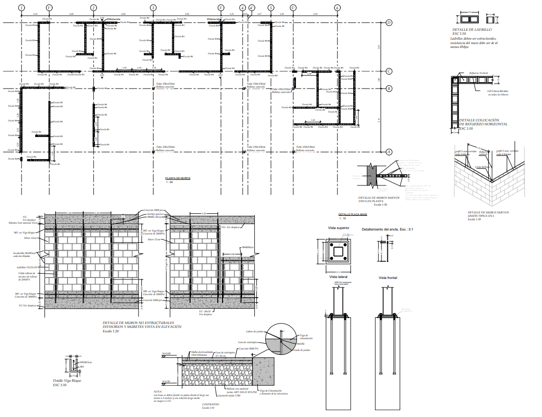
Vivienda unifamiliar ubicada en el corregimiento La Buitrera, zona rural al sur de Cali. Acceso limitado para transporte de materiales y terreno con restricciones de lindero que condicionaron el uso de zapatas excéntricas. La estructura de un nivel (altura 5.09 m) está resuelta con PRM en acero, utilizando columnas tubulares cuadradas de 150×150×6 mm.

Rol

Ingeniero estructural apoyando el diseño, modelación, producción de planos de despieces y memorias de cálculo.

Proceso

  • Coordinación inicial con AP Arquitectos para revisión del proyecto arquitectónico y definición conjunta de la distribución estructural
  • Planteamiento del sistema de columnas tubulares 150×150×6 mm que permitiera lograr la planta libre solicitada por arquitectura
  • Desarrollo de dos versiones del modelo ETABS (V1 y V2) para optimizar secciones y distribución de cargas, ajustando el diseño tras los resultados de la primera iteración
  • Diseño y verificación de conexiones metálicas en RAM Connections, asegurando compatibilidad con los perfiles tubulares seleccionados
  • Diseño de cimentación con zapatas aisladas excéntricas adaptadas a la geometría del lote y las restricciones de lindero

Resultados

  • La estructura logra una planta libre continua gracias a las columnas tubulares cuadradas de 150×150×6 mm, cumpliendo el requisito arquitectónico de espacialidad sin interrupciones
  • Las dos iteraciones del modelo ETABS permitieron reducir secciones en zonas no críticas y redistribuir rigidez lateral, mejorando el comportamiento global sin sobredimensionar
  • Las conexiones fueron verificadas en RAM Connections garantizando la transferencia de momento en los nudos del pórtico
  • La cimentación con zapatas excéntricas resolvió la restricción geométrica del lote, evitando invasión de linderos y manteniendo la capacidad portante requerida según el estudio de suelos

Lecciones

Las cargas de viento, a pesar de tratarse de una estructura de un nivel, siguen siendo uno de los puntos más críticos en el diseño. En sitios rurales con exposición abierta, los coeficientes de presión lateral son mayores que en zonas urbanas protegidas por edificaciones vecinas. Para esta vivienda en La Buitrera, las combinaciones de carga con viento gobernaron el dimensionamiento de varios elementos de la cubierta y las conexiones laterales.

Análisis ETABS (9)

Captura ETABS – Casa La Buitrera
Captura ETABS – Casa La Buitrera
Captura ETABS – Casa La Buitrera
Captura ETABS – Casa La Buitrera
Captura ETABS – Casa La Buitrera
Captura ETABS – Casa La Buitrera
Captura ETABS – Casa La Buitrera
Captura ETABS – Casa La Buitrera
Captura ETABS – Casa La Buitrera
Captura ETABS – Casa La Buitrera
Captura ETABS – Casa La Buitrera
Captura ETABS – Casa La Buitrera
Captura ETABS – Casa La Buitrera
Captura ETABS – Casa La Buitrera
Captura ETABS – Casa La Buitrera
Captura ETABS – Casa La Buitrera
Captura ETABS – Casa La Buitrera
Captura ETABS – Casa La Buitrera

Planos Estructurales (6)

Plano estructural plano E-01 – Casa La Buitrera
Plano estructural plano E-01 – Casa La Buitrera
Plano estructural plano E-02 – Casa La Buitrera
Plano estructural plano E-02 – Casa La Buitrera
Plano estructural plano E-03 – Casa La Buitrera
Plano estructural plano E-03 – Casa La Buitrera
Plano estructural plano E-04 – Casa La Buitrera
Plano estructural plano E-04 – Casa La Buitrera
Plano estructural plano E-05 – Casa La Buitrera
Plano estructural plano E-05 – Casa La Buitrera
Plano estructural plano E-06 – Casa La Buitrera
Plano estructural plano E-06 – Casa La Buitrera