Volver a Proyectos Casa Antonio Nariño
Reconocimiento y Ampliación Residencial — Barrio Antonio Nariño, Cali

Casa Antonio Nariño

Edificio multifamiliar de tres niveles

Diseño Estructural Diseño de Cimentación Análisis Sísmico Memoria de Cálculo Diseño en Concreto ETABS NSR-10

Puntos Clave

  • Separación sísmica de 9 cm calculada y justificada formalmente ante curaduría
  • Zona 6 de microzonificación de Cali — Fv = 2.61, una de las más exigentes de la ciudad
  • 25 modos modales con masa participante > 99.9%
  • Cortante basal de 180.97 ton sobre estructura residencial de 3 niveles
  • Verificación de deflexiones en sección agrietada bajo cargas de servicio

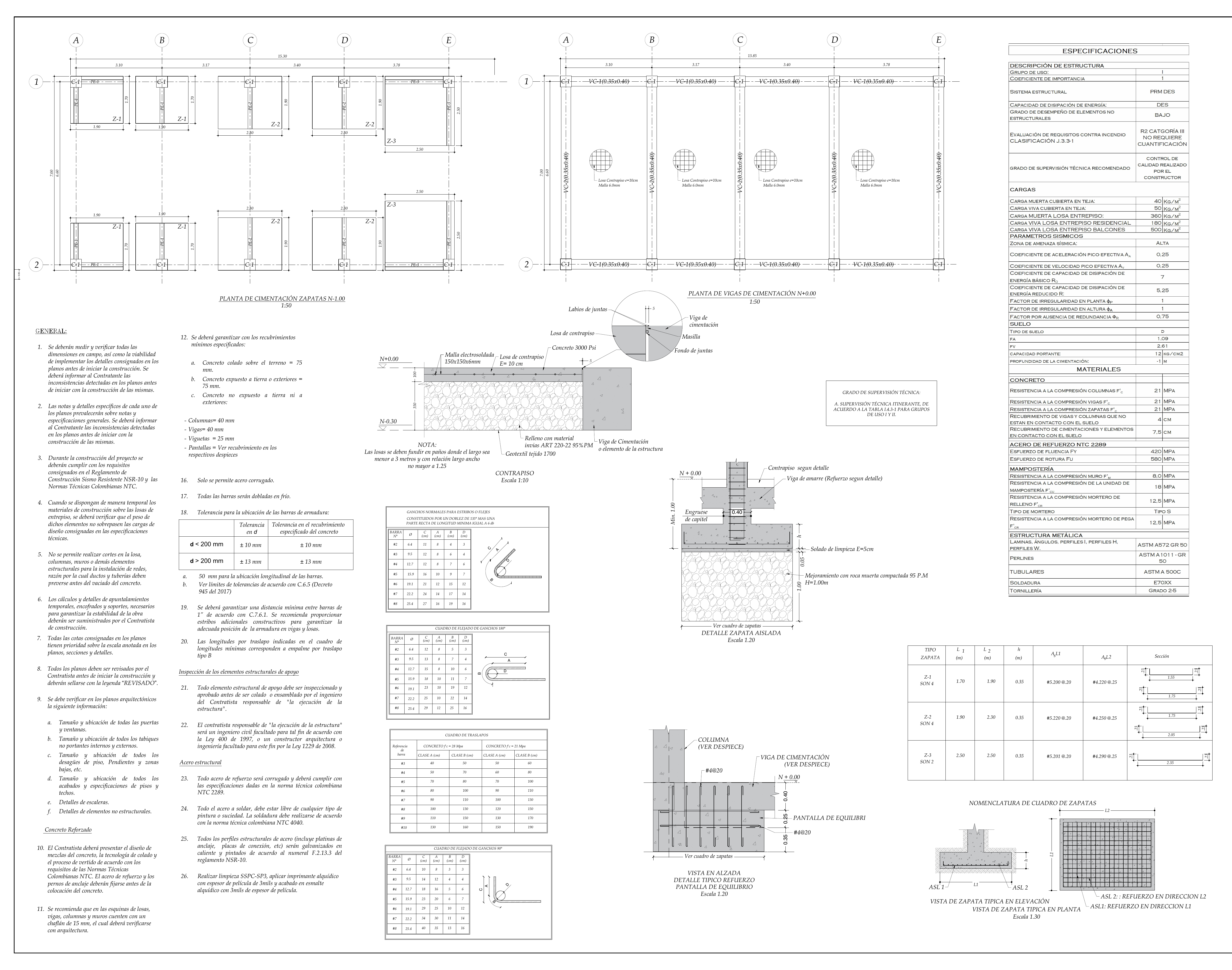
Especificaciones Técnicas

Niveles
4
Altura
9.00 m
Sistema Estructural
Pórticos Resistentes a Momento en Concreto Reforzado
Normativa
NSR-10
Software
ETABS Plus 22.4.0
Cimentación
Zapatas aisladas + vigas de cimentación

Contexto

Proyecto de ampliación de edificación residencial de dos niveles ubicada en el barrio Antonio Nariño, Cali. Un reto técnico particular fue la proximidad con una edificación vecina cuyas losas de entrepiso no coinciden con las del proyecto. Esto obligó a calcular y documentar una separación sísmica de 9 cm (1% de la altura total), siguiendo los requerimientos de la Tabla A.6.5-1 de la NSR-10, algo que rara vez se necesita justificar formalmente en proyectos residenciales de esta escala.

Rol

Ingeniero estructural apoyando el diseño, modelación, producción de planos de despieces y memorias de cálculo.

Proceso

  • Levantamiento de la estructura existente de dos niveles y revisión de los documentos de construcción originales
  • Desarrollo del modelo ETABS con pórticos en concreto PRM para la estructura completa incluyendo el tercer nivel
  • Cálculo de la separación sísmica de 9 cm según la Tabla A.6.5-1 de la NSR-10, considerando niveles de entrepiso no coincidentes con la edificación vecina
  • Ejecución de análisis modal con 25 modos para zona 6 de microzonificación (Fv=2.61)
  • Diseño de cimentación con zapatas y vigas de cimentación para las cargas incrementadas por el tercer nivel
  • Verificación de deflexiones en secciones agrietadas bajo cargas de servicio

Resultados

  • Ampliación completa del tercer nivel alcanzando 9 m de altura total sobre la estructura existente
  • Separación sísmica de 9 cm formalmente documentada y justificada ante curaduría
  • Cortante basal de 180.97 ton correctamente distribuido entre los elementos resistentes de los tres niveles
  • Deflexiones verificadas en secciones agrietadas bajo cargas de servicio, confirmando cumplimiento de estados límite
  • 25 modos modales con masa participante superior al 99.9%

Lecciones

La separación sísmica con edificaciones vecinas no es un trámite, es un problema de ingeniería real. Cuando los niveles de entrepiso de dos edificaciones adyacentes no coinciden, el choque sísmico puede ocurrir en cualquier punto a lo largo de la altura — no solo en los pisos. Calcular S = 9 cm y documentarlo formalmente fue la única forma de garantizar que la ampliación no generara una vulnerabilidad nueva en la edificación vecina.

Análisis ETABS (6)

Captura ETABS – Casa Antonio Nariño
Captura ETABS – Casa Antonio Nariño
Captura ETABS – Casa Antonio Nariño
Captura ETABS – Casa Antonio Nariño
Captura ETABS – Casa Antonio Nariño
Captura ETABS – Casa Antonio Nariño
Captura ETABS – Casa Antonio Nariño
Captura ETABS – Casa Antonio Nariño
Captura ETABS – Casa Antonio Nariño
Captura ETABS – Casa Antonio Nariño
Captura ETABS – Casa Antonio Nariño
Captura ETABS – Casa Antonio Nariño

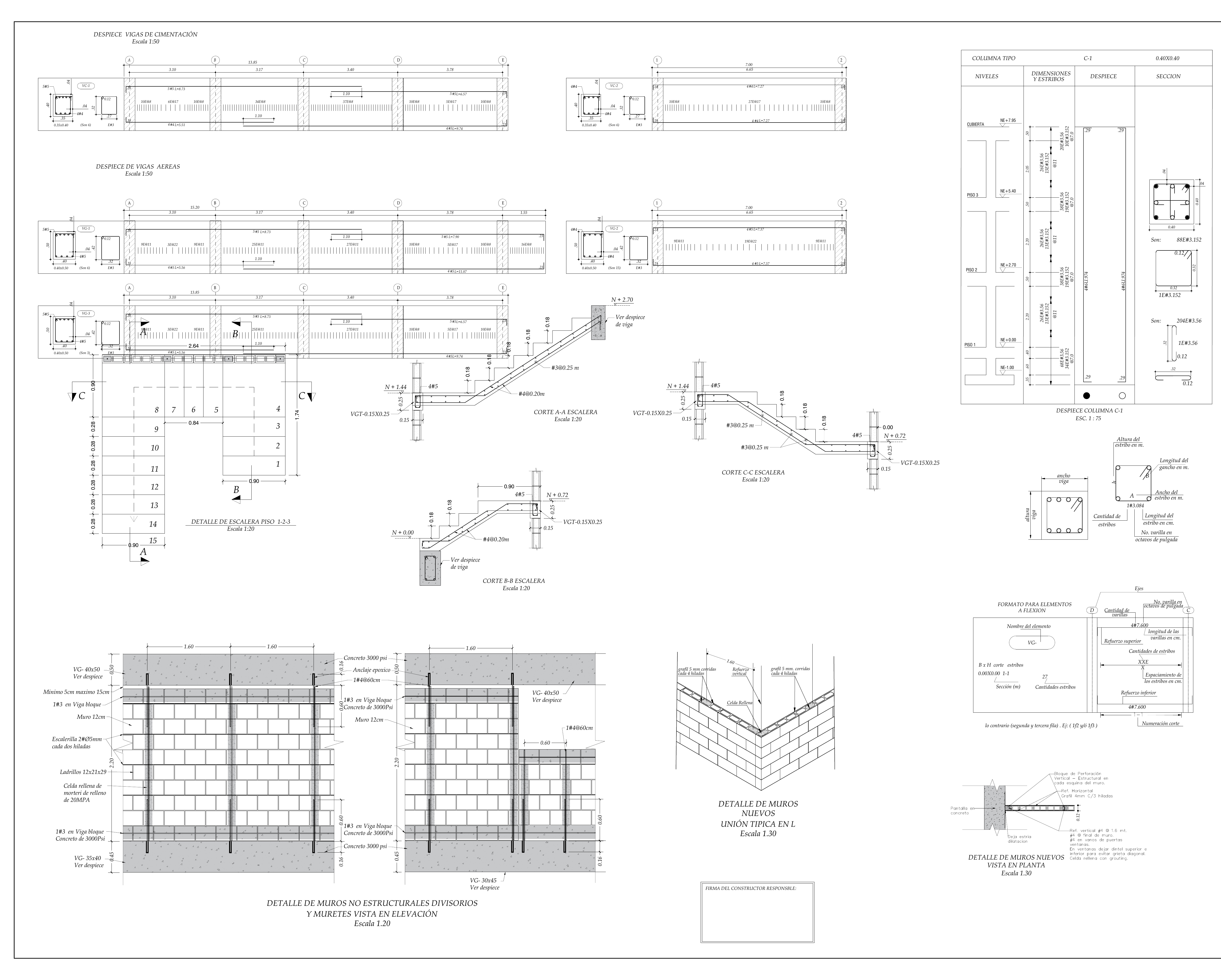
Planos Estructurales (3)

Plano estructural plano E-01 – Casa Antonio Nariño
Plano estructural plano E-01 – Casa Antonio Nariño
Plano estructural plano E-02 – Casa Antonio Nariño
Plano estructural plano E-02 – Casa Antonio Nariño
Plano estructural plano E-03 – Casa Antonio Nariño
Plano estructural plano E-03 – Casa Antonio Nariño