Volver a Proyectos Proyecto Andrade
Diseño Estructural Residencial — Cali, Valle del Cauca

Proyecto Andrade

Edificio Residencial de 6 Niveles – Correcciones para Licencia

Diseño Estructural Memoria de Cálculo NSR-10

Puntos Clave

  • Corrección de 3 láminas estructurales para licencia
  • Memoria de cálculo actualizada con observaciones del revisor

Especificaciones Técnicas

Sistema Estructural
Pórticos Resistentes a Momento en Concreto Reforzado
Normativa
NSR-10
Software
ETABS
Cimentación
Zapatas aisladas, combinadas y esquineras + pedestales + vigas de amarre

Contexto

Edificio residencial de 6 niveles en Cali con sistema PRM en concreto reforzado. El proyecto requirió la revisión y corrección de tres láminas estructurales (E-03, E-04 y E-05) y la actualización de la memoria de cálculo para atender las observaciones del curador urbano en el trámite de licencia de construcción.

Rol

Ingeniero estructural apoyando el diseño, modelación, producción de planos de despieces y memorias de cálculo.

Proceso

  • Recepción de las observaciones del curador urbano e identificación de los ítems específicos de corrección que afectaban planos y memoria de cálculo
  • Revisión del modelo ETABS existente contrastando cada observación con los parámetros y resultados del análisis original
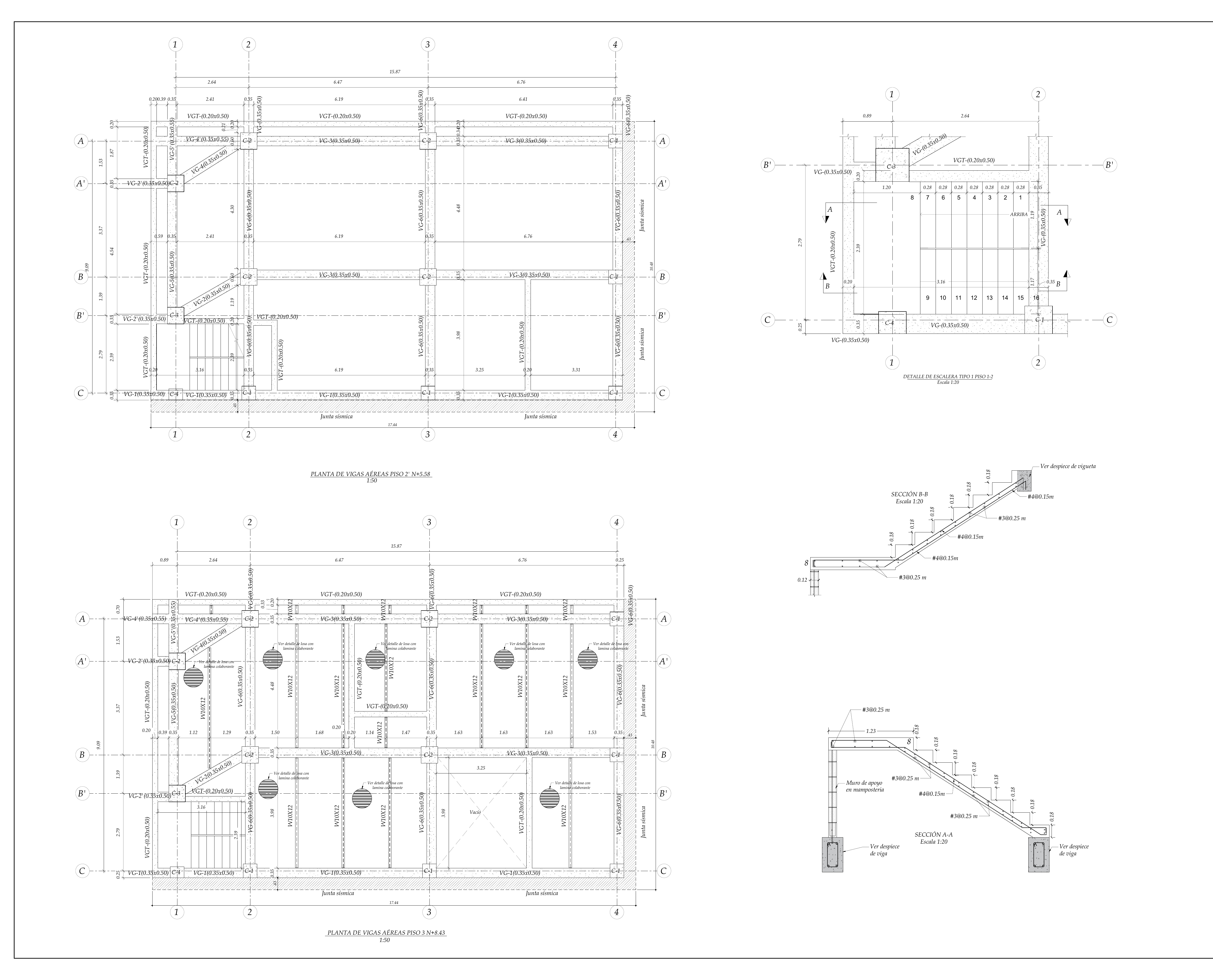
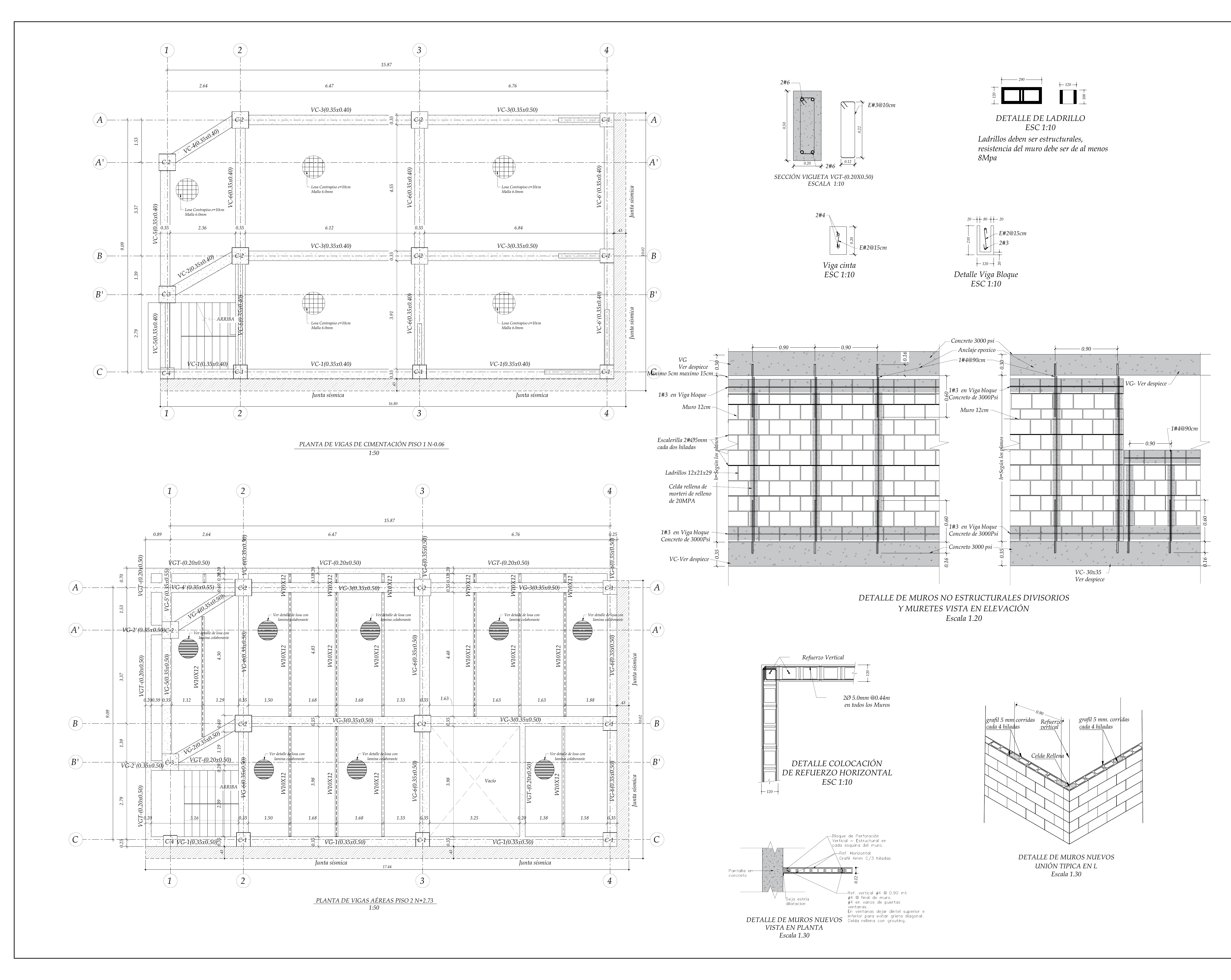
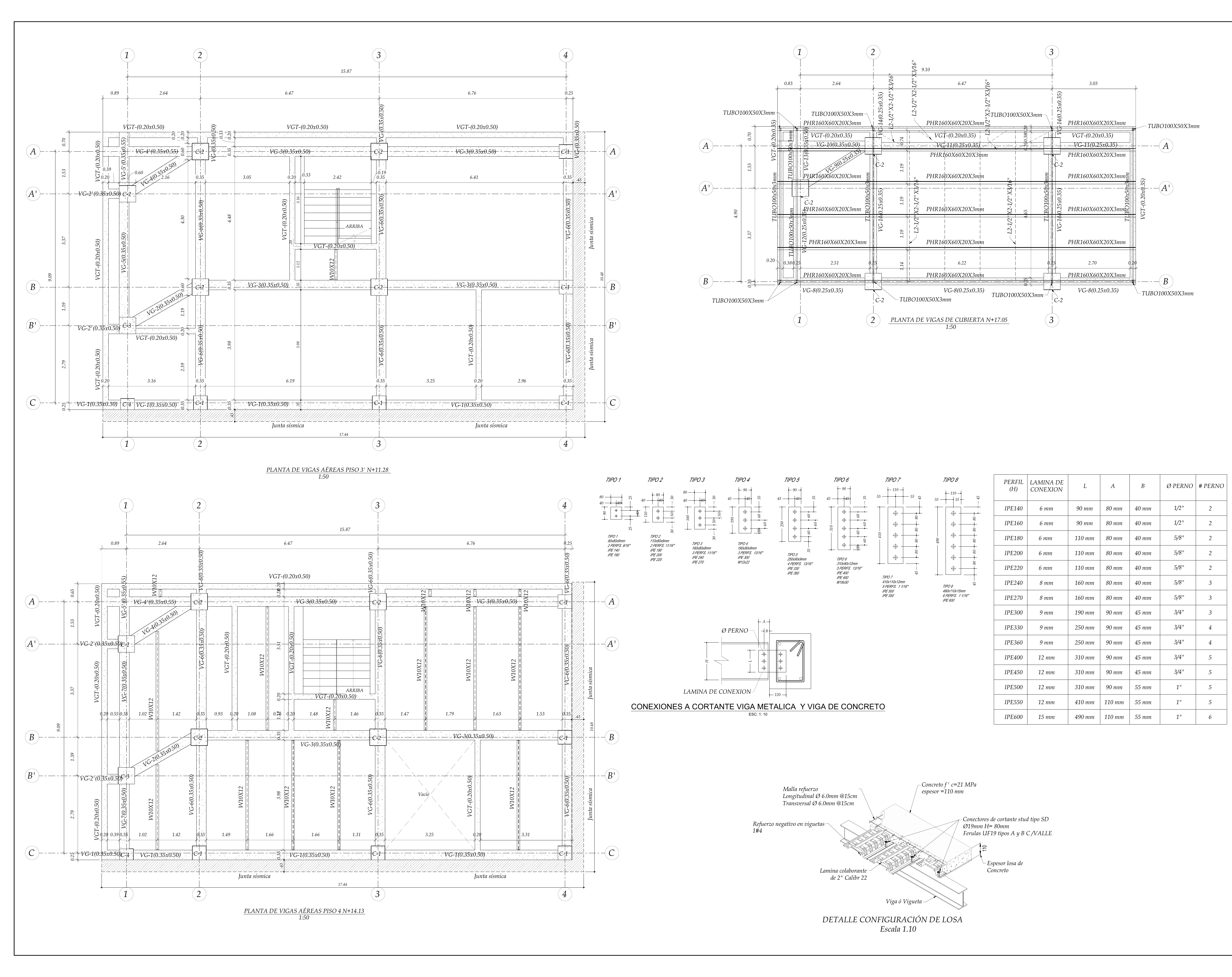
  • Corrección de las tres láminas estructurales E-03, E-04 y E-05, ajustando detalles de armado, cotas y especificaciones señaladas por el revisor
  • Actualización de la memoria de cálculo con respuestas específicas a cada observación, documentando la justificación técnica de cada corrección realizada

Resultados

  • Las tres láminas estructurales (E-03, E-04, E-05) quedaron corregidas y listas para radicación ante la curaduría con los ajustes solicitados por el revisor
  • La memoria de cálculo fue actualizada con respuestas punto por punto a cada observación, vinculando cada corrección con su soporte numérico en el modelo ETABS
  • La documentación completa quedó preparada para la aprobación de la licencia de construcción sin observaciones pendientes

Lecciones

Las correcciones de curaduría requieren un enfoque sistemático: tratar cada observación como un ítem trazable con su evidencia de corrección garantiza que ningún punto quede sin atender y que el documento de respuesta cierre de forma limpia ante el revisor.

Análisis ETABS (7)

Modelo ETABS – Proyecto Andrade (01)
Modelo ETABS – Proyecto Andrade (01)
Modelo ETABS – Proyecto Andrade (02)
Modelo ETABS – Proyecto Andrade (02)
Modelo ETABS – Proyecto Andrade (03)
Modelo ETABS – Proyecto Andrade (03)
Modelo ETABS – Proyecto Andrade (04)
Modelo ETABS – Proyecto Andrade (04)
Modelo ETABS – Proyecto Andrade (05)
Modelo ETABS – Proyecto Andrade (05)
Modelo ETABS – Proyecto Andrade (06)
Modelo ETABS – Proyecto Andrade (06)
Modelo ETABS – Proyecto Andrade (07)
Modelo ETABS – Proyecto Andrade (07)

Planos Estructurales (3)

Plano estructural plano E-03 – Proyecto Andrade
Plano estructural plano E-03 – Proyecto Andrade
Plano estructural plano E-04 – Proyecto Andrade
Plano estructural plano E-04 – Proyecto Andrade
Plano estructural plano E-05 – Proyecto Andrade
Plano estructural plano E-05 – Proyecto Andrade