Volver a Proyectos Floralia – Ampliación Etapa 1
Reconocimiento y Ampliación Residencial — Cali, Valle del Cauca

Floralia – Ampliación Etapa 1

Correcciones a Observaciones de Curaduría

Diseño Estructural Análisis Sísmico ETABS NSR-10

Puntos Clave

  • Respuesta formal a 17 observaciones del Acta de Curaduría
  • Retroceso sísmico de 3 metros garantizado para nivel de cubierta
  • Coordinación arquitectura–estructura en DWG
  • Hojas de cálculo de verificación de elementos corregidas

Especificaciones Técnicas

Sistema Estructural
Pórticos Resistentes a Momento en Concreto Reforzado
Normativa
NSR-10
Software
ETABS
Cimentación
Zapatas excéntricas para evitar invasión de terreno vecino

Contexto

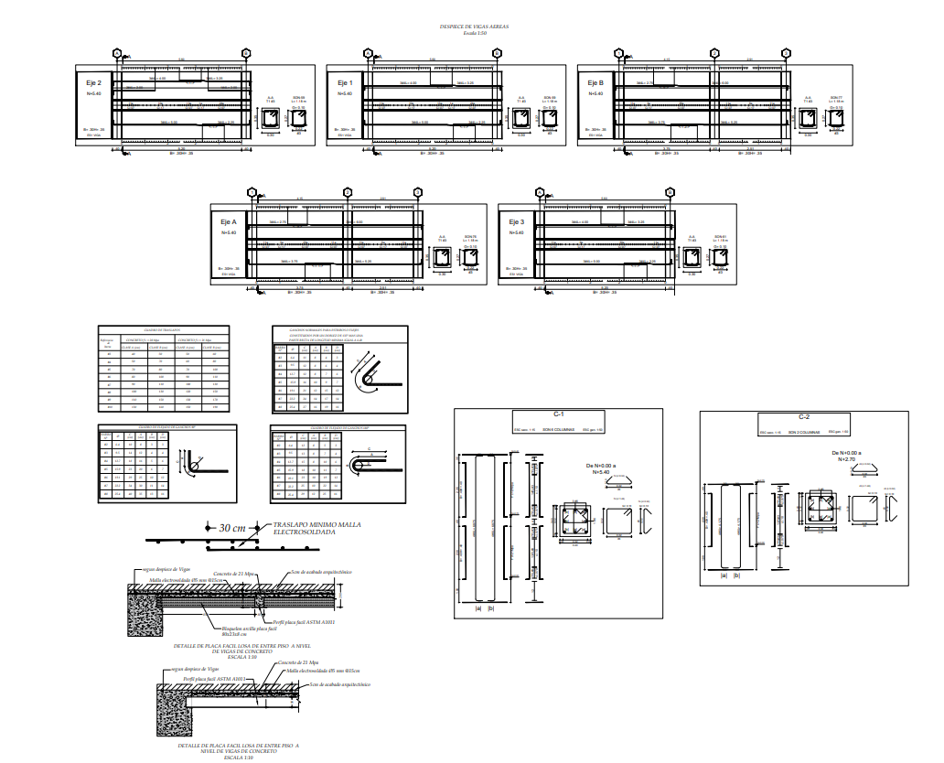
Correcciones estructurales para la ampliación de una vivienda de interés social de dos niveles en el proyecto Floralia Etapa 1, Cali. El Acta de Observaciones de la Curaduría Urbana contenía 17 puntos de corrección, siendo el más crítico garantizar el retroceso sísmico de 3 metros con la estructura adyacente a nivel de cubierta, lo que requirió desplazar un eje y recalcular toda la estructura.

Rol

Ingeniero estructural apoyando el diseño, modelación, producción de planos de despieces y memorias de cálculo.

Proceso

  • Recepción y análisis del Acta de Observaciones emitida por la Curaduría Urbana, identificando cada punto de corrección y su alcance dentro del diseño existente
  • Revisión del modelo ETABS del sistema PRM en concreto contrastando los parámetros señalados por el curador con los valores del modelo original
  • Corrección de las hojas de cálculo de verificación de elementos, actualizando cuantías, relaciones de capacidad y chequeos de derivas
  • Coordinación con el equipo de arquitectura para garantizar coherencia entre los planos estructurales corregidos y los planos arquitectónicos en DWG
  • Elaboración del documento de respuesta formal con la justificación técnica punto por punto de cada corrección realizada

Resultados

  • Todas las observaciones de la curaduría fueron atendidas formalmente con soporte técnico, generando un documento de respuesta que vincula cada observación con su corrección específica en planos y memoria
  • La memoria de cálculo quedó completamente actualizada, reflejando los ajustes en el modelo ETABS y las verificaciones corregidas de cada elemento estructural
  • Las hojas de cálculo de verificación se corrigieron asegurando trazabilidad entre los resultados del modelo y las capacidades reportadas
  • Los planos estructurales y arquitectónicos quedaron coordinados en DWG, eliminando inconsistencias dimensionales y de nomenclatura

Lecciones

Responder observaciones de curaduría resulta más exigente que el diseño original: cada corrección debe demostrar con precisión qué cambió y por qué, sin introducir nuevas inconsistencias en un documento que ya fue revisado por un tercero. En este proyecto, garantizar el retroceso sísmico de 3 metros obligó a correr un eje estructural completo, lo que significó recalcular y despiezar toda la estructura desde cero — una sola observación que multiplicó el alcance del trabajo.

Análisis ETABS (7)

Captura ETABS – Floralia Correcciones
Captura ETABS – Floralia Correcciones
Captura ETABS – Floralia Correcciones
Captura ETABS – Floralia Correcciones
Captura ETABS – Floralia Correcciones
Captura ETABS – Floralia Correcciones
Captura ETABS – Floralia Correcciones
Captura ETABS – Floralia Correcciones
Captura ETABS – Floralia Correcciones
Captura ETABS – Floralia Correcciones
Captura ETABS – Floralia Correcciones
Captura ETABS – Floralia Correcciones
Captura ETABS – Floralia Correcciones
Captura ETABS – Floralia Correcciones

Planos Estructurales (4)

Plano estructural plano E-01 – Floralia Correcciones
Plano estructural plano E-01 – Floralia Correcciones
Plano estructural plano E-02 – Floralia Correcciones
Plano estructural plano E-02 – Floralia Correcciones
Plano estructural plano E-03 – Floralia Correcciones
Plano estructural plano E-03 – Floralia Correcciones
Plano estructural plano E-04 – Floralia Correcciones
Plano estructural plano E-04 – Floralia Correcciones