Volver a Proyectos Floresta
Reforzamiento Estructural Residencial — Cali, Valle del Cauca

Floresta

Vivienda Residencial con Peritaje

Diseño Estructural Peritaje Técnico DC-CAD ETABS NSR-10

Puntos Clave

  • Peritaje técnico ante Curaduría Urbana incluido
  • Gráficas de deriva de piso en X e Y
  • Verificación de 3 nodos críticos
  • Modelo ETABS combinado estructura + cimentación

Especificaciones Técnicas

Sistema Estructural
Pórticos Resistentes a Momento en concreto
Normativa
NSR-10
Software
ETABS, DC-CAD
Cimentación
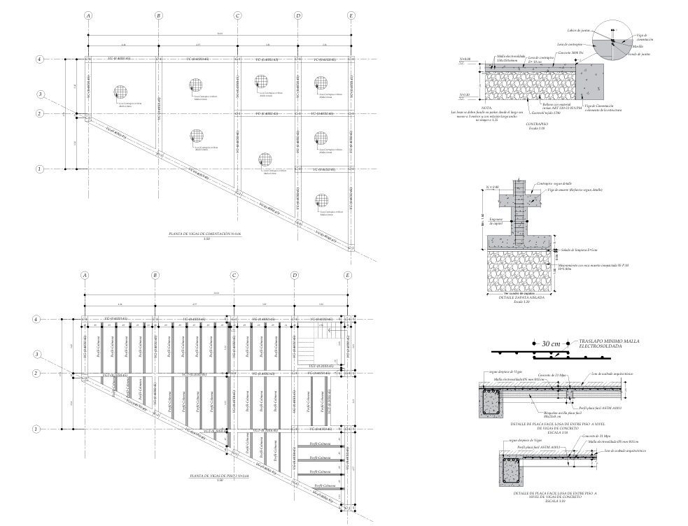
Zapatas aisladas + vigas de cimentación + pedestales

Reto de ingeniería

La vivienda fue construida hace años sin cumplir con los requerimientos de la norma actual NSR-10. El peritaje técnico debía demostrar si la estructura podía seguir en uso de forma segura o si requería intervención. A diferencia de un diseño nuevo, el ingeniero no elige las secciones ni la configuración — debe trabajar con lo que existe y documentar cada hipótesis ante la curaduría urbana.

Contexto

Vivienda de 3 niveles con sistema de pórticos resistentes a momento en concreto (PRM DES). La edificación fue construida sin cumplir plenamente los requerimientos de la norma actual NSR-10, lo que motivó la ejecución de un peritaje técnico ante la Curaduría Urbana para evaluar la seguridad estructural. El peritaje documentó el estado actual, identificó deficiencias y definió las intervenciones necesarias para alcanzar el cumplimiento normativo.

Rol

Ingeniero estructural apoyando el diseño, modelación, producción de planos de despieces y memorias de cálculo.

Proceso

  • Ejecución de peritaje técnico e inspección en sitio para radicación ante curaduría urbana
  • Desarrollo de modelo ETABS combinado integrando superestructura y cimentación en un solo análisis
  • Verificación de límites de deriva en ambas direcciones X e Y con documentación gráfica
  • Revisión de 3 nudos críticos viga-columna por cortante y confinamiento
  • Producción de memoria detallada de diseño de vigas de 22 páginas
  • Generación de despieces automatizados con DC-CAD para todos los elementos estructurales

Resultados

  • Peritaje técnico formalmente aceptado por curaduría urbana
  • Modelo combinado estructura-cimentación capturando la interacción suelo-estructura real
  • Gráficas de deriva demostrando cumplimiento en ambas direcciones principales
  • Tres nudos críticos verificados con transferencia de cortante adecuada
  • Las fuerzas resultantes en columnas y vigas cercanas al nivel del suelo difirieron entre un 10% y un 15% respecto a un modelo de base empotrada convencional
  • Memoria de vigas de 22 páginas documentando cada verificación de diseño
  • Cinco planos estructurales con detalles completos

Lecciones

Combinar la superestructura y la cimentación en un solo modelo ETABS elimina la aproximación de condiciones de borde asumidas en la base, lo cual es especialmente significativo en un peritaje que debe demostrar margen de seguridad ante un revisor de curaduría.

Análisis ETABS (10)

Captura ETABS – Floresta Mafe
Captura ETABS – Floresta Mafe
Captura ETABS – Floresta Mafe
Captura ETABS – Floresta Mafe
Captura ETABS – Floresta Mafe
Captura ETABS – Floresta Mafe
Captura ETABS – Floresta Mafe
Captura ETABS – Floresta Mafe
Captura ETABS – Floresta Mafe
Captura ETABS – Floresta Mafe
Captura ETABS – Floresta Mafe
Captura ETABS – Floresta Mafe
Captura ETABS – Floresta Mafe
Captura ETABS – Floresta Mafe
Captura ETABS – Floresta Mafe
Captura ETABS – Floresta Mafe
Captura ETABS – Floresta Mafe
Captura ETABS – Floresta Mafe
Captura ETABS – Floresta Mafe
Captura ETABS – Floresta Mafe

Planos Estructurales (5)

Plano estructural 1 – Floresta Mafe
Plano estructural 1 – Floresta Mafe
Plano estructural 2 – Floresta Mafe
Plano estructural 2 – Floresta Mafe
Plano estructural 3 – Floresta Mafe
Plano estructural 3 – Floresta Mafe
Plano estructural 4 – Floresta Mafe
Plano estructural 4 – Floresta Mafe
Plano estructural 5 – Floresta Mafe
Plano estructural 5 – Floresta Mafe