Volver a Proyectos Local La Alborada
Reforzamiento Estructural Comercial — Barrio La Alborada, Jamundí

Local La Alborada

Reconocimiento y Reforzamiento Comercial

Diseño Estructural Diseño en Concreto Reforzamiento Estructural Peritaje Técnico DC-CAD ETABS NSR-10

Puntos Clave

  • Informe de peritaje técnico para estructura existente
  • Gráficas de respuesta sísmica X e Y
  • Análisis detallado de derivas de piso
  • Ampliación de dos niveles comerciales
  • Despieces de columnas y vigas con DC-CAD

Especificaciones Técnicas

Niveles
2
Altura
5.45 m
Sistema Estructural
Pórticos Resistentes a Momento en Concreto Reforzado
Normativa
NSR-10
Software
ETABS, DC-CAD
Cimentación
Pedestales + vigas de cimentación

Contexto

Reconocimiento y reforzamiento de un local comercial de venta minorista en el barrio La Alborada, Jamundí. La estructura existente se encontraba en estado regular y no cumplía con los requerimientos de la NSR-10, lo que requirió detener la operación durante la intervención. La ampliación alcanzó dos pisos (5.45 m de altura) con PRM en concreto reforzado, incluyendo informe de peritaje técnico, gráficas de respuesta espectral en X e Y, y análisis detallado de derivas de piso.

Rol

Ingeniero estructural apoyando el diseño, modelación, producción de planos de despieces y memorias de cálculo.

Proceso

  • Elaboración del peritaje inicial de la estructura comercial existente en el barrio La Alborada, documentando el estado de los elementos portantes y su capacidad remanente
  • Modelación de la estructura combinada existente + ampliación en ETABS como un sistema integrado
  • Generación de curvas de respuesta espectral en las direcciones X e Y para verificar el comportamiento dinámico del conjunto
  • Análisis detallado de derivas por nivel de piso, verificando el cumplimiento de los límites normativos NSR-10 en ambas direcciones
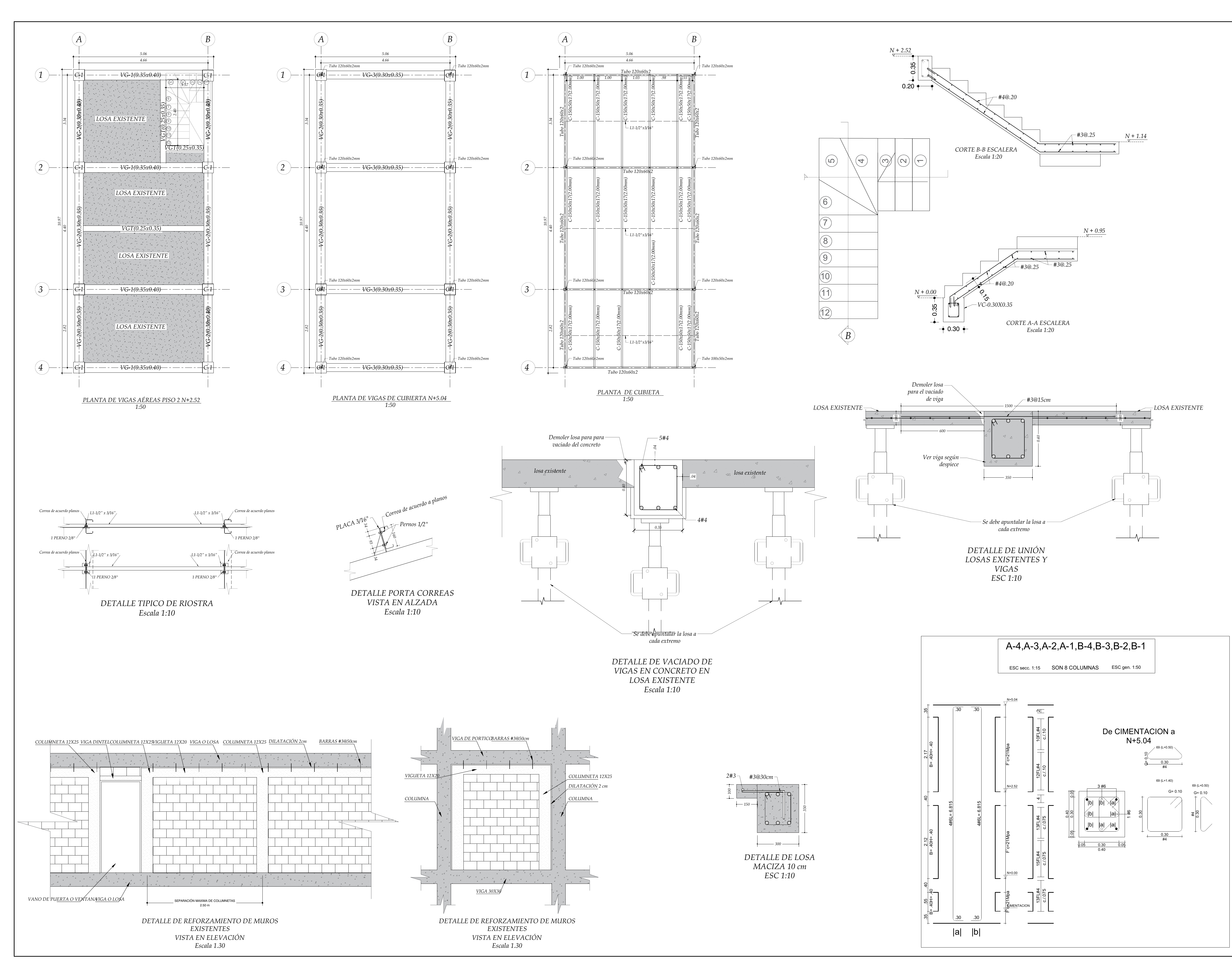
  • Diseño de columnas, vigas y cimentación con producción de despieces automatizados mediante DC-CAD
  • Elaboración de 3 láminas estructurales completas para trámite de licencia de construcción

Resultados

  • Informe de peritaje documentando la condición y capacidad de la estructura existente como base para el diseño de la ampliación
  • Análisis de respuesta espectral confirmando desempeño sísmico adecuado en ambas direcciones principales
  • Análisis de derivas demostrando cumplimiento normativo en todos los niveles de piso, incluyendo la condición más exigente de la dirección débil
  • Dos niveles comerciales alcanzando 5.45 m de altura total con alturas libres funcionales para uso comercial
  • Despieces automatizados con DC-CAD para columnas y vigas, garantizando consistencia en el detallado de refuerzo

Lecciones

Las estructuras comerciales requieren luces libres mayores que las residenciales, lo que implica que los límites de deriva se convierten en el criterio gobernante del diseño mucho antes de lo esperado. Una sección que cumple verificaciones de resistencia puede fallar en serviciabilidad si el momento de inercia es insuficiente para el mayor espaciamiento entre columnas.

Análisis ETABS (10)

Captura ETABS – Local La Alborada
Captura ETABS – Local La Alborada
Captura ETABS – Local La Alborada
Captura ETABS – Local La Alborada
Captura ETABS – Local La Alborada
Captura ETABS – Local La Alborada
Captura ETABS – Local La Alborada
Captura ETABS – Local La Alborada
Captura ETABS – Local La Alborada
Captura ETABS – Local La Alborada
Captura ETABS – Local La Alborada
Captura ETABS – Local La Alborada
Captura ETABS – Local La Alborada
Captura ETABS – Local La Alborada
Captura ETABS – Local La Alborada
Captura ETABS – Local La Alborada
Captura ETABS – Local La Alborada
Captura ETABS – Local La Alborada
Captura ETABS – Local La Alborada
Captura ETABS – Local La Alborada

Planos Estructurales (3)

Plano estructural plano E-01 – Local La Alborada
Plano estructural plano E-01 – Local La Alborada
Plano estructural plano E-02 – Local La Alborada
Plano estructural plano E-02 – Local La Alborada
Plano estructural plano E-03 – Local La Alborada
Plano estructural plano E-03 – Local La Alborada