Volver a Proyectos Vivienda Senderos de la Morada
Reconocimiento y Ampliación Residencial — Jamundí, Valle del Cauca

Vivienda Senderos de la Morada

Reconocimiento y Ampliación – 3 Módulos

Diseño Estructural Mampostería Estructural DC-CAD ETABS NSR-10

Puntos Clave

  • Tres módulos independientes con diseño individual
  • Sistema en Mampostería Estructural DMO
  • Cimentación diseñada con DC-CAD (despieces automatizados)
  • Estudio de suelos y verificación de capacidad portante
  • Verificación de irregularidades sísmicas por módulo

Especificaciones Técnicas

Niveles
1
Altura
3.33 m
Sistema Estructural
Mampostería Estructural
Normativa
NSR-10
Software
ETABS, DC-CAD
Cimentación
Pedestales + vigas de cimentación + zapatas

Contexto

Reconocimiento y ampliación de vivienda unifamiliar en Jamundí, distribuida en tres módulos independientes construidos con sistemas estructurales distintos: dos módulos en mampostería estructural DMO y uno en PRM de acero. Los tres módulos fueron construidos independientes entre sí — no adosados — cada uno con su propio sistema estructural y modelo ETABS, lo que exigió diseñar las juntas de separación entre ellos.

Rol

Ingeniero estructural apoyando el diseño, modelación, producción de planos de despieces y memorias de cálculo.

Proceso

  • Levantamiento de la estructura existente de un nivel en mampostería, distribuida en tres módulos independientes
  • Desarrollo de modelos ETABS separados para cada módulo con propiedades de mampostería estructural DMO
  • Verificación de irregularidades sísmicas de forma independiente por módulo
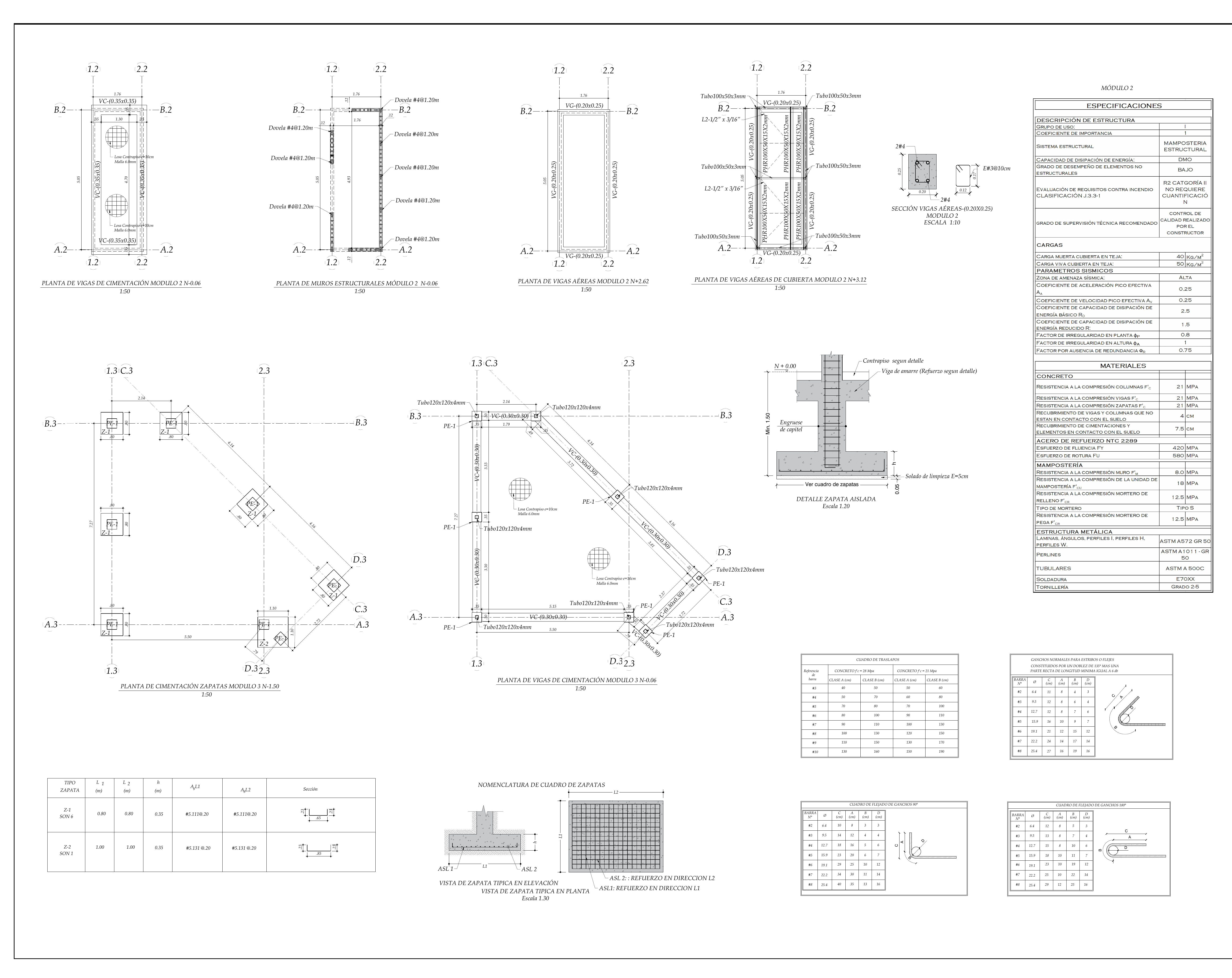
  • Diseño de cimentación con DC-CAD produciendo despieces automatizados de pedestales y vigas de cimentación
  • Revisión de la capacidad de los muros de mampostería existentes contra los requisitos de la NSR-10

Resultados

  • Tres módulos independientes, cada uno con comportamiento estructural verificado individualmente
  • Verificación de irregularidades sísmicas aprobada para todos los módulos
  • Planos de cimentación automatizados con DC-CAD asegurando consistencia entre los tres módulos
  • Capacidad portante del suelo verificada contra las recomendaciones del estudio de suelos
  • Juntas de separación entre los tres módulos diseñadas para acomodar los movimientos diferenciales sin transferencia de cargas entre sistemas

Lecciones

Dividir una estructura en módulos independientes para el análisis en ETABS simplifica el modelo, pero exige mucha atención a las juntas entre módulos. Lo que parece una conveniencia de modelación se convierte en un detalle constructivo real que debe ser diseñado y dibujado. En este proyecto, la combinación de mampostería DMO y acero en módulos separados requirió diseñar juntas que acomodaran los movimientos diferenciales entre sistemas con rigideces completamente distintas — la mampostería se mueve poco pero es frágil, el acero se deforma más pero sin daño.

Análisis ETABS (12)

Captura ETABS – Vivienda Senderos de la Morada
Captura ETABS – Vivienda Senderos de la Morada
Captura ETABS – Vivienda Senderos de la Morada
Captura ETABS – Vivienda Senderos de la Morada
Captura ETABS – Vivienda Senderos de la Morada
Captura ETABS – Vivienda Senderos de la Morada
Captura ETABS – Vivienda Senderos de la Morada
Captura ETABS – Vivienda Senderos de la Morada
Captura ETABS – Vivienda Senderos de la Morada
Captura ETABS – Vivienda Senderos de la Morada
Captura ETABS – Vivienda Senderos de la Morada
Captura ETABS – Vivienda Senderos de la Morada
Captura ETABS – Vivienda Senderos de la Morada
Captura ETABS – Vivienda Senderos de la Morada
Captura ETABS – Vivienda Senderos de la Morada
Captura ETABS – Vivienda Senderos de la Morada
Captura ETABS – Vivienda Senderos de la Morada
Captura ETABS – Vivienda Senderos de la Morada
Captura ETABS – Vivienda Senderos de la Morada
Captura ETABS – Vivienda Senderos de la Morada
Captura ETABS – Vivienda Senderos de la Morada
Captura ETABS – Vivienda Senderos de la Morada
Captura ETABS – Vivienda Senderos de la Morada
Captura ETABS – Vivienda Senderos de la Morada

Planos Estructurales (3)

Plano estructural plano E-01 – Vivienda Senderos de la Morada
Plano estructural plano E-01 – Vivienda Senderos de la Morada
Plano estructural plano E-02 – Vivienda Senderos de la Morada
Plano estructural plano E-02 – Vivienda Senderos de la Morada
Plano estructural plano E-03 – Vivienda Senderos de la Morada
Plano estructural plano E-03 – Vivienda Senderos de la Morada