Volver a Proyectos Panamericano Candelaria
Diseño Estructural Comercial — Candelaria, Valle del Cauca

Panamericano Candelaria

Edificio Comercial en Concreto

Diseño Estructural DC-CAD ETABS NSR-10

Puntos Clave

  • Sistema PRM en concreto para edificio comercial
  • Zapatas aisladas con verificación de irregularidades
  • Conjunto de 7 láminas estructurales
  • Despieces automatizados con DC-CAD

Especificaciones Técnicas

Sistema Estructural
Pórticos Resistentes a Momento en Concreto
Normativa
NSR-10
Software
ETABS, DC-CAD
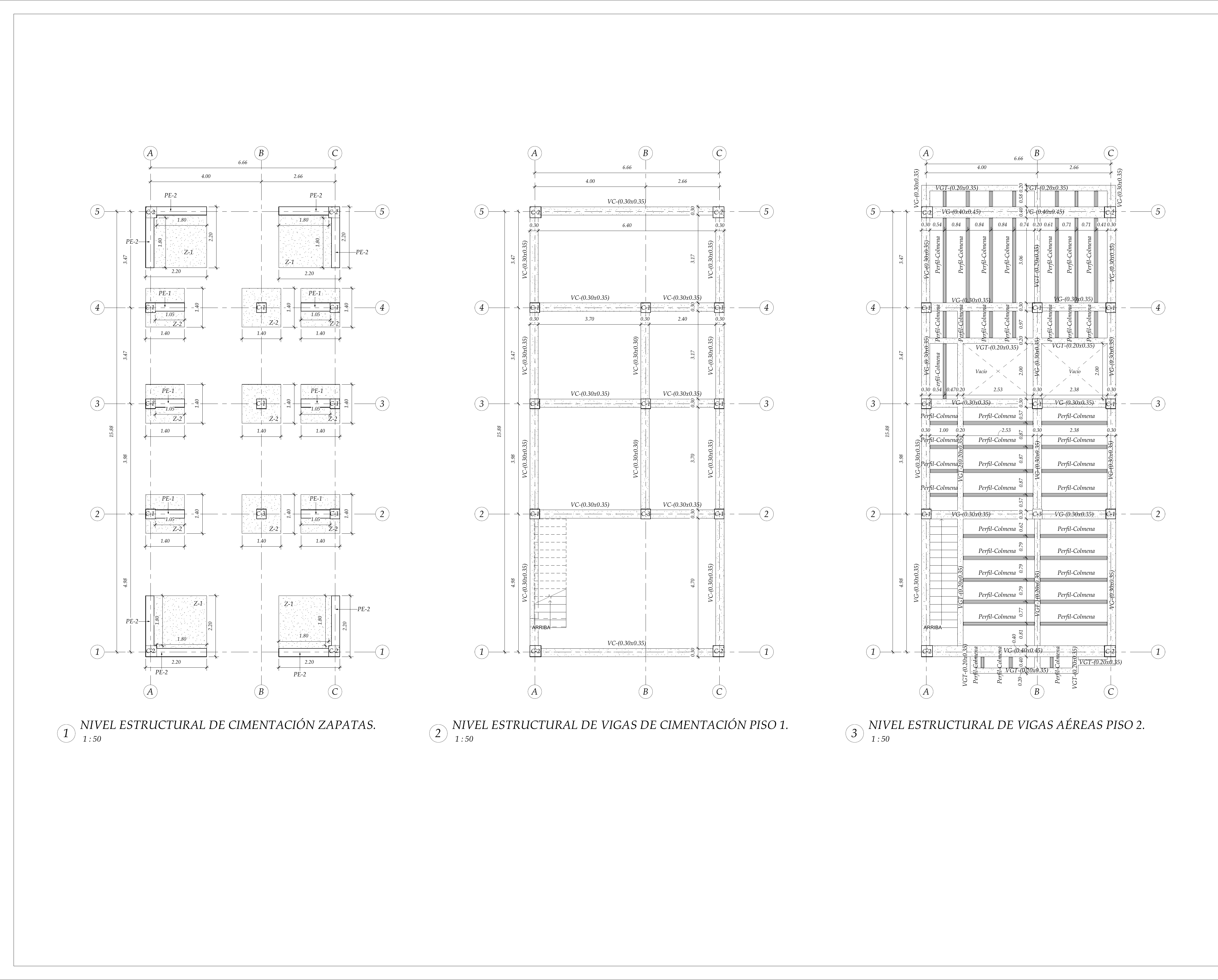
Cimentación
Zapatas aisladas

Contexto

Proyecto comercial en Candelaria con sistema PRM en concreto y entrepiso aligerado con viguetas. El diseño pasó por múltiples iteraciones en la cimentación para optimizar las dimensiones de las zapatas aisladas según la capacidad portante del suelo.

Rol

Ingeniero estructural apoyando el diseño, modelación, producción de planos de despieces y memorias de cálculo.

Proceso

  • Desarrollo de la configuración estructural para un edificio comercial con sistema PRM en concreto y entrepiso aligerado con viguetas
  • Modelación en ETABS con sistema de viguetas para optimizar el peso propio de la losa de entrepiso
  • Ejecución de múltiples iteraciones de diseño (V1 → V2) para optimizar las dimensiones de zapatas aisladas según la capacidad del suelo
  • Verificación de irregularidades estructurales conforme a los requisitos de la NSR-10
  • Producción de despieces automatizados de columnas y vigas con DC-CAD para garantizar consistencia en la documentación
  • Ensamblaje de 7 láminas de planos estructurales para el proyecto completo

Resultados

  • Sistema PRM en concreto optimizado con entrepiso aligerado de viguetas que reduce la carga muerta respecto a una losa maciza convencional
  • Diseño de zapatas refinado alcanzando un ahorro del 15–20% en volumen de concreto respecto a la primera iteración, traduciéndose directamente en reducción de costo de construcción
  • Verificación de irregularidades confirmando que la estructura cumple todos los criterios de regularidad de la NSR-10
  • 7 láminas de planos estructurales proporcionando documentación constructiva completa del proyecto
  • Despieces automatizados con DC-CAD asegurando consistencia entre todos los detalles de armado

Lecciones

La optimización iterativa de zapatas es una inversión que se paga sola en proyectos comerciales — la clave está en saber cuándo dejar de iterar y aceptar la solución vigente, porque cada ciclo de refinamiento tiene un costo de ingeniería que eventualmente supera el ahorro en concreto.

Análisis ETABS (9)

Captura ETABS – Panamericano Candelaria
Captura ETABS – Panamericano Candelaria
Captura ETABS – Panamericano Candelaria
Captura ETABS – Panamericano Candelaria
Captura ETABS – Panamericano Candelaria
Captura ETABS – Panamericano Candelaria
Captura ETABS – Panamericano Candelaria
Captura ETABS – Panamericano Candelaria
Captura ETABS – Panamericano Candelaria
Captura ETABS – Panamericano Candelaria
Captura ETABS – Panamericano Candelaria
Captura ETABS – Panamericano Candelaria
Captura ETABS – Panamericano Candelaria
Captura ETABS – Panamericano Candelaria
Captura ETABS – Panamericano Candelaria
Captura ETABS – Panamericano Candelaria
Captura ETABS – Panamericano Candelaria
Captura ETABS – Panamericano Candelaria

Planos Estructurales (3)

Plano estructural plano E-01 – Panamericano Candelaria
Plano estructural plano E-01 – Panamericano Candelaria
Plano estructural plano E-02 – Panamericano Candelaria
Plano estructural plano E-02 – Panamericano Candelaria
Plano estructural plano E-03 – Panamericano Candelaria
Plano estructural plano E-03 – Panamericano Candelaria