Volver a Proyectos Parqueadero La Piedra
Diseño Estructural Infraestructura Comercial — Barrio San Pedro, Centro de Cali

Parqueadero La Piedra

Estructura de Parqueo Multinivel

Diseño Estructural Diseño de Cimentación Análisis Sísmico Diseño de Conexiones Modelación BIM Estudio de Suelos ETABS BIM / IFC NSR-10

Puntos Clave

  • Estructura de 6 niveles + semisótano en zona urbana densa
  • Perfiles IPE de gran escala (hasta IPE600)
  • Diseño en dos módulos independientes (A y B)
  • Modelo BIM IFC para coordinación multidisciplinar
  • Estudio de suelos y análisis de capacidad portante

Especificaciones Técnicas

Niveles
7
Sistema Estructural
Pórticos Resistentes a Momento en Acero
Normativa
NSR-10, AISC 360
Software
ETABS, DC-CAD
Perfiles
IPE300, IPE450, IPE500, IPE550, IPE600
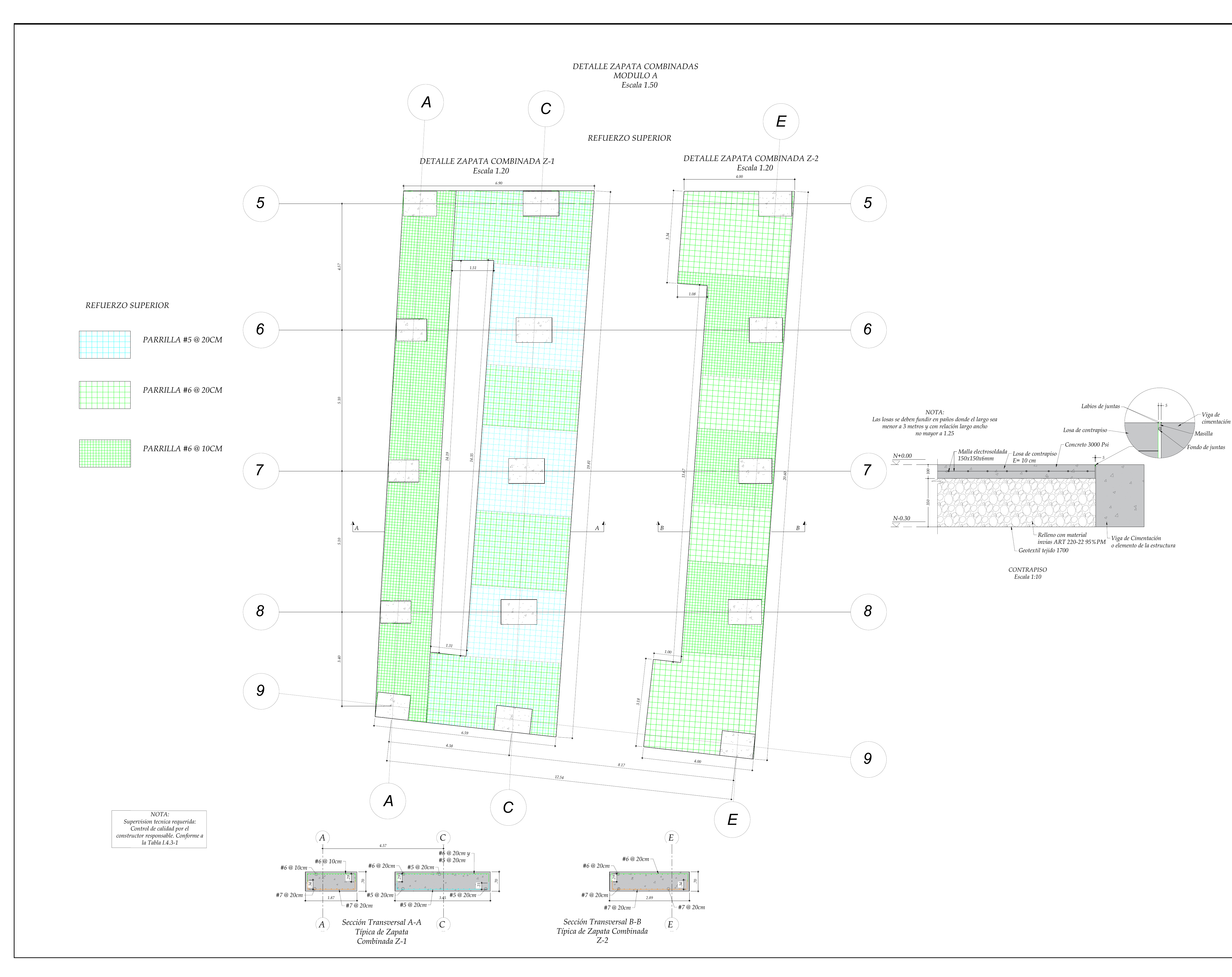
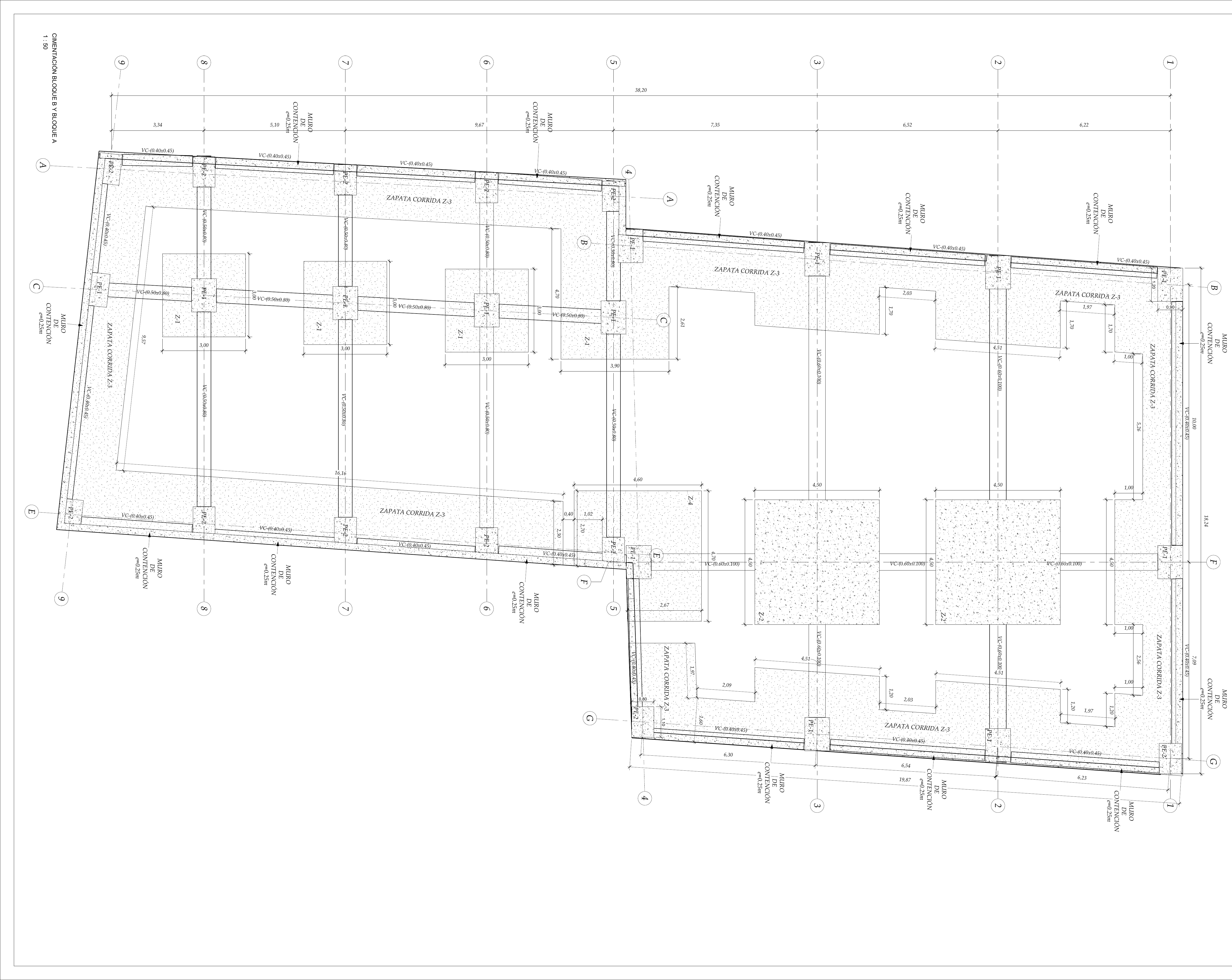
Cimentación
Cimentación zapatas combinadas + pedestales

Contexto

Edificio de parqueadero multinivel con 6 pisos y un nivel de semisótano, ubicado en el barrio San Pedro del centro histórico de Cali. La huella urbana limitada, las restricciones de altura propias de la zona patrimonial, la vecindad con edificaciones existentes y el acceso restringido para montaje de acero condicionaron la configuración estructural desde el planteamiento inicial. El sistema es PRM en acero con perfiles IPE de gran escala (hasta IPE600), dividido en Módulo A y Módulo B con modelos ETABS independientes.

Rol

Ingeniero estructural apoyando el diseño, modelación, producción de planos de despieces y memorias de cálculo.

Proceso

  • Desarrollo de la configuración estructural para un parqueadero de 7 niveles condicionado por la huella urbana del centro histórico de Cali
  • Creación de modelos ETABS independientes para el Módulo A y el Módulo B con sus configuraciones geométricas distintas
  • Selección y diseño de perfiles IPE de gran escala (IPE300 a IPE600) para los pórticos resistentes a momento
  • Diseño de conexiones a momento para todo el rango de perfiles IPE utilizando DC-CAD
  • Estudio de suelos y análisis de capacidad portante para zapatas combinadas y pedestales
  • Producción del modelo BIM en formato IFC para coordinación con los equipos de arquitectura e instalaciones

Resultados

  • 7 niveles de parqueadero en acero resueltos dentro de una huella urbana restringida del centro histórico de Cali
  • Dos módulos independientes que permiten respuestas estructurales diferenciadas según su geometría particular
  • Rango completo de perfiles IPE (300, 450, 500, 550 y 600) diseñados con sus conexiones correspondientes
  • Modelo BIM en formato IFC facilitando la coordinación en un proyecto con múltiples disciplinas involucradas
  • Estudio de suelos confirmando la capacidad portante para las cargas concentradas transmitidas por las columnas de acero

Lecciones

Las estructuras de parqueadero multinivel en acero están gobernadas por fuerzas horizontales (sismo + frenado vehicular) que generan demandas muy diferentes a las de gravedad sola — a partir de 6 niveles, el diseño de conexiones debe considerar momentos de volcamiento significativos que hacen que incluso los perfiles IPE600 trabajen cerca de sus límites de capacidad.

Análisis ETABS (6)

Captura ETABS – Parqueadero La Piedra
Captura ETABS – Parqueadero La Piedra
Captura ETABS – Parqueadero La Piedra
Captura ETABS – Parqueadero La Piedra
Captura ETABS – Parqueadero La Piedra
Captura ETABS – Parqueadero La Piedra
Captura ETABS – Parqueadero La Piedra
Captura ETABS – Parqueadero La Piedra
Captura ETABS – Parqueadero La Piedra
Captura ETABS – Parqueadero La Piedra
Captura ETABS – Parqueadero La Piedra
Captura ETABS – Parqueadero La Piedra

Planos Estructurales (6)

Plano estructural plano E-01 – Parqueadero La Piedra
Plano estructural plano E-01 – Parqueadero La Piedra
Plano estructural plano E-02 – Parqueadero La Piedra
Plano estructural plano E-02 – Parqueadero La Piedra
Plano estructural plano E-03 – Parqueadero La Piedra
Plano estructural plano E-03 – Parqueadero La Piedra
Plano estructural conexion 01 – Parqueadero La Piedra
Plano estructural conexion 01 – Parqueadero La Piedra
Plano estructural conexion 02 – Parqueadero La Piedra
Plano estructural conexion 02 – Parqueadero La Piedra
Plano estructural conexion 03 – Parqueadero La Piedra
Plano estructural conexion 03 – Parqueadero La Piedra